Skip to main content
Image of Alder Commons

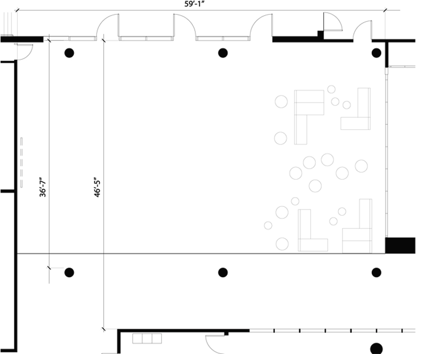
Room type: Lounge

Capacity: 220

Seating: Couches, stools, long tables with chairs

Minimum rental: 4 hours

Media equipment: Projector, screen, surround sound

Features: Adjacent to Alder Auditorium and meeting rooms, WiFi

Accessible: Yes

Room Sets:

Standard

Image of Alder Commons, Room Set "Standard"

Request meeting space

Please reserve meeting space at least 10 business days in advance and no earlier than one year in advance.

RSO'S, UW DEPARTMENTS, AND OFF-CAMPUS GROUPS

UW community members, including Registered Student Organizations (RSOs), or groups sponsored by the university.

HFS RESIDENTS

All HFS residents are eligible to reserve meeting and study space.

Need Catering? We can help!

A plate of fish and vegetables

Bay Laurel Catering

Bay Laurel Catering, the trusted and embedded caterer at the UW, provides memorable catering for events of all sizes. From boxed lunches to custom elegant events, Bay Laurel Catering excels in bringing your vision to life.

Blueberry muffins on a plate

Café to Go

Café to Go allows you to conveniently order coffee, beverages, pastries, snacks, salads, sandwiches, or cookies for your meeting or engagement.