Skip to main content

Building Type: Residence Hall

Neighborhood: West Campus

Mailing Address:

Resident Name
1302 NE Campus Parkway
### (room number)
Seattle, WA 98105


Partnership with University Book Store

HUSKY HOME

VISIT OUR MODEL ROOM

No time for a formal tour? Check out the model room at the University Book Store in U District.

father and son in model room at University Book Store on the Ave in Seattle

Agreement Duration: Academic year

Living Learning Communities:

Global Experience

Amenities Nearby:

Area 01, maker and creative space in Maple Hall

Fitness Center West, gym in Elm Hall

Bicycle Storage: 2nd floor, room 240

Options:

Gender-inclusive

Room Types

# Units Rate
Double room, private bath 130 $4,396/quarter
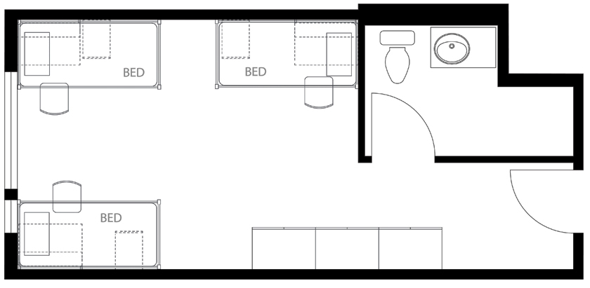
Triple room, private bath 5 $3,529/quarter
Single room, private bath 23 $5,176/quarter
Studio apartment, private bath 6 $6,322/quarter

Typical Room Layouts

Double room, private bath

Image of Double room, private bath

Triple room, private bath

Image of Triple room, private bath