Skip to main content

Building Type: Residence Hall

Neighborhood: North Campus

Mailing Address:

Resident Name
Oliver Hall, Room ### (room number)
4294 Little Canoe Channel NE*
Seattle, WA 98195


Partnership with University Book Store

HUSKY HOME

VISIT OUR MODEL ROOM

No time for a formal tour? Check out the model room at the University Book Store in U District.

father and son in model room at University Book Store on the Ave in Seattle

*Whitman Lane NE has been renamed Sluʔwił (Little Canoe Channel NE). Although street signs have changed, you may hear the street referred to by both names as the name change awaits formal state recognition. The name change acknowledges the Duwamish Peoples who continue to fight for federal recognition as a tribe, and who lived and engaged in potlaches, gift-giving festivals of sharing and trading, in the area, until the land was colonized by white settlers.

Agreement Duration: Academic year

Living Learning Communities:

Humanities

Amenities Nearby:

Frost Bite, a student-managed ice cream shop in Spratlen Hall

The MILL, maker space and engineering lab in McCarty Hall

McMahon Hall Fitness Room, located in the North Tower

The 8, a maker, games and study space in McMahon Hall

Bicycle Storage: 2nd floor, room 201

Options:

Gender-inclusive

Private music practice rooms

Room Types

# Units Rate
Double room, private bath 142 $4,396/quarter
Triple room, private bath 38 $3,529/quarter
Four-person suite, private bath 24 $3,295/quarter
Three-person suite, private bath 14 $3,736/quarter
Studio apartment, private bath 3 $6,322/quarter

Typical Room Layouts

Double room, private bath

Image of Double room, private bath

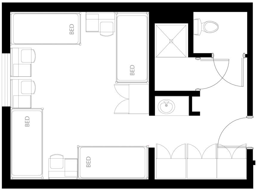
Three-person suite, private bath

Image of Three-person suite, private bath

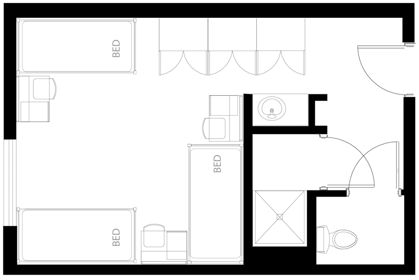
Four-person suite, private bath

Image of Four-person suite, private bath